系统下载、安装、激活,就到系统天地来!

所在位置: 首页 — 系统文章 — 软件教程

CAD快速看图设置测量比例的详细方法介绍

作者:系统天地 日期:2022-05-27

CAD快速看图设置测量比例的操作教程

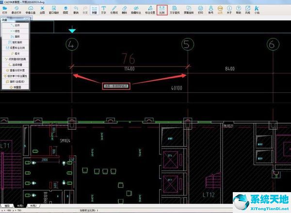
      我们先在布局中测量或大样图测量中,会遇到测量结果和标注不一致,如图。此时点击工具栏的“调整比例”按钮,进行测量比例调整。

CAD快速看图设置测量比例的操作教程截图

      然后我们按照鼠标旁边的提示,选择一条已知长度的线段端点。

CAD快速看图设置测量比例的操作教程截图

      这时弹出对话框,填入实际距离(图纸上标注的),点击确定。

CAD快速看图设置测量比例的操作教程截图

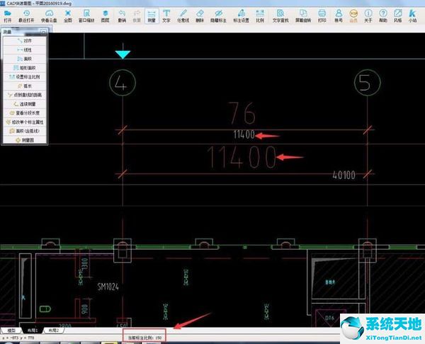
      此时,重新测量刚才的线段,发现测量结果和标注一致。观察软件下方的当前比例,可以发现比例已经改变。

CAD快速看图设置测量比例的操作教程截图

      相信你们看完了上文所述的CAD快速看图设置测量比例的具体操作流程,大家应该都学会了吧!